Retour
    Coup de coeur

Saint-Étienne (42000)
SAINT ETIENNE EMPLACEMENT PREMIUM HOTEL DE VILLE APPARTEMENT T7 209 m2

Prix
du bien
249 900 €
réf : 666

01
Général

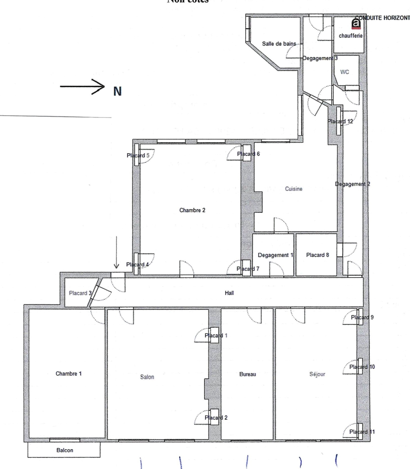
Idéalement situé Place de l'hotel de ville, au coeur du centre ville de Saint Etienne, je vous propose cet appartement ancien de caractère développant une surface exceptionnelle de 209 m2 et offrant de très beaux volumes.

Situé dans un immeuble de standing de 1880, ce T7 se compose de vastes piéces de réception, de plusieurs chambres, d'une cuisine indépendante, ainsi que d'une salle de bains et sanitaires.

L'appartement bénéficie d'un balcon, apportant une ouverture exclusive sur la place de l'hotel de ville. ainsi qu'une cave en annexe.

Le charme de l'ancien est au RDV; belles hauteurs sous plafond, cheminées, volumes généreux, potentiel remarquable.

Des travaux de rafraichissement, reconfiguration sont à prévoir, laissant libre cours à vos projets d'aménagment, de division et de rénovation, que ce soit pour une résidence principale de prestige, une profession libérale ou un investissement parimonial.

Emplacement premium, à proximité immédiate des commerces, transports, parking public écoles et commodités.

Produit rare sur le secteur, opportunité unique pour amateurs de grands espaces... Visite virtuelle disponible après premier contact téléphonique uniquement. Je suis à votre écoute: Denis ARGAUD o6.78.67.62.55 mail: d.argaud@immoduforez.fr

lots 13 et 27, charges mensuelles de 201 euros. Taxe foncière de 2230 euros + 118 euros TOM, DPE D, GES D, pas de procédure en cours. CPI 4202 2021 000 000 001 délivrée par CCI Lyon métroplole St Etienne Roanne validité 21/02/2027 n° identification 894 020 387 n°ADC 4202 2024 000000000114 RCAS 47803571000027 RCPRO 114.240.070 "Les informations sur les risques auxquels ce bien est exposé sont disponibles sur le site Géorisques: www.georisques.gouv.fr" (C.envir., art.R. 125-25,I)

02
Plus d'infos

  • Code postal
    42000
  • Surface habitable (m²)
    209 m²
  • Surface loi Carrez (m²)
    209,16 m²
  • Nombre de chambre(s)
    4
  • Nombre de pièces
    8
  • Etage
    2
  • Ascenseur
    OUI
  • Vue
    place hotel de ville

03
Financier

  • Prix de vente honoraires TTC inclus
    249 900 €
  • Charges
    201 €
  • Taxe foncière annuelle
    2 348 €

04
Plus de détails

  • Nb de salle de bains
    1
  • Cuisine
    Séparée
  • Mode de chauffage
    Gaz
  • Type de chauffage
    TRAD_TYPE_CHAUFF_CHAUDIERE
  • Format de chauffage
    Individuel
  • Balcon
    OUI
  • Terrasse
    NON
  • Cave
    OUI
  • Surface cave (m²)
    16
  • Exposition
    Est-Ouest
  • Année de construction
    1880

05
Copropriété

  • Copropriété
    OUI
  • Lot n°
    27, 13
  • nombre de lots
    91
  • Quote Part annuelle des charges
    2 415 €
  • plan de sauvegarde
    NON
  • statut du syndic
    pas de procédure en cours

06
Bilan énergétique

DPE GES
Nos outils

Plus d'informations sur
le quartier

  • Commerces et santé
  • Loisirs
  • Ecoles
  • Transports
  • Pratique
Intéressé(e)
par ce bien