Retour

Saint-Étienne (42000)
SAINT ETIENNE BUREAUX / PROFESSIONS LIBERALES EMPLACEMENT PREMIUM HOTEL DE VILLE 209 m2

Prix
du bien
249 900 €
réf : 666B

01
Général

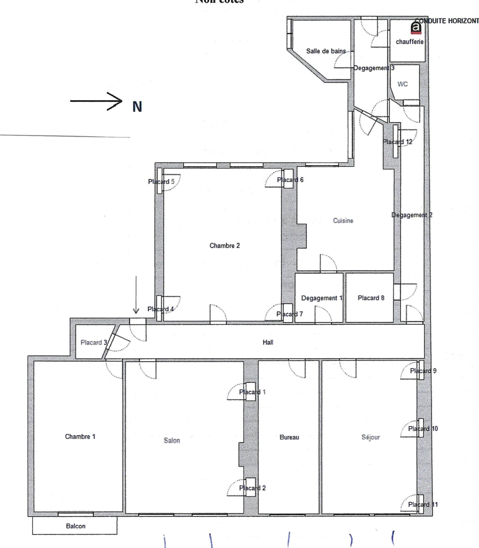
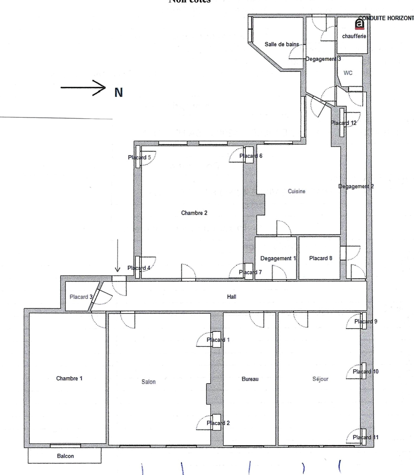
Je vous propose idéalement situé place de l'hotel de ville, au coeur du centre ville de Saint Etienne, ce bien rare qui developpe une surface exceptionnelle de 209 m2, parfaitement adaptée à une activité de bureaux, professions libérales ou à un projet d'invstissement locatif.

Installé dans un immeuble de 1880, cet espace offre de grands volumes modulables, permettant l'aménagement de plusieurs bureaux, salle de réunion, espace d'accueil ou open-space selon vos besoins.

La configuration actuelle permet une excellente séparation des espaces de travail (5 bureaux encore divisibles), avec une circulation fluide.

Le bien dispose d'un balcon, apportant luminosité et confort avec une vue exclusive sur la place de l'hotel de ville... Un cave incluse de 16 m2

Des travaux de rafraichissement sont à prévoir, offrant une opportunité de valorisation et d'optimisation des surfaces, tant pour un usage professionnel que dans une logique de rendement locatif ou de revente.

Emplacement stratégique et recherché, visibilité optimale, à proximité immédiate des transports en commun, parkings publics, commerces et institutions.

Produit rare sur le secteur, idéal pour: cabinets médicaux ou paramédicaux, avocats, notaires, experts comptables, bureaux d'entreprise ou siège social. Investisseurs à la reherche d'un actif de qualité en centre ville.

Visite virtuelle disponible après premier contact téléphonique uniquement. Je suis à votre écoute: Denis ARGAUD o6.78.67.62.55 mail: d.argaud@immoduforez.fr

lots 13 et 27, carges mensuelles de 201 euros. Taxe foncière de 2230 euros + 118 euros TOM, DPE D, GES D, pas de procédure en cours. CPI 4202 2021 000 000 001 délivrée par CCI Lyon métroplole St Etienne Roanne validité 21/02/2027 n° identification 894 020 387 n°ADC 4202 2024 000000000114 RCAS 47803571000027 RCPRO 114.240.070 "Les informations sur les risques auxquels ce bien est exposé sont disponibles sur le site Géorisques: www.georisques.gouv.fr" (C.envir., art.R. 125-25,I)

02
Plus d'infos

  • Type de transac
    Bureaux
  • Code postal
    42000
  • Surface habitable (m²)
    209 m²
  • Surface loi Carrez (m²)
    209,16 m²
  • Nombre de chambre(s)
    4
  • Nombre de pièces
    8
  • Etage
    2
  • Ascenseur
    1
  • Vue
    place hotel de ville
  • Superficie (m²)
    209

03
Financier

  • Prix de vente honoraires inclus
    249 900 €
  • Charges
    202 €

04
Plus de détails

  • Nb de salle de bains
    1
  • Cuisine
    Séparée
  • Mode de chauffage
    Gaz
  • Type de chauffage
    TRAD_TYPE_CHAUFF_CHAUDIERE
  • Format de chauffage
    Individuel
  • Balcon
    OUI
  • Terrasse
    NON
  • Cave
    OUI
  • Surface cave (m²)
    16
  • Exposition
    Est-Ouest
  • Année de construction
    1880

05
Copropriété

  • Copropriété
    OUI
  • Lot n°
    27
  • nombre de lots
    91
  • Quote Part annuelle des charges
    2 415 €
  • plan de sauvegarde
    NON
  • statut du syndic
    pas de procédure en cours

06
Bilan énergétique

DPE GES
Nos outils

Plus d'informations sur
le quartier

  • Commerces et santé
  • Loisirs
  • Ecoles
  • Transports
  • Pratique
Intéressé(e)
par ce bien